Luxury New Build Villas with in Finestrat near Benidorm Exclusive Collection of Sustainable Independent Villas This prestigious development features 36 independent villas in the sought after Bahia Golf urbanization in Finestrat, just 3.5 km from the Mediterranean coast.
Designed to combine luxury, comfort and sustainability, these modern homes offer an exceptional lifestyle on the Costa Blanca, surrounded by nature yet close to all services.
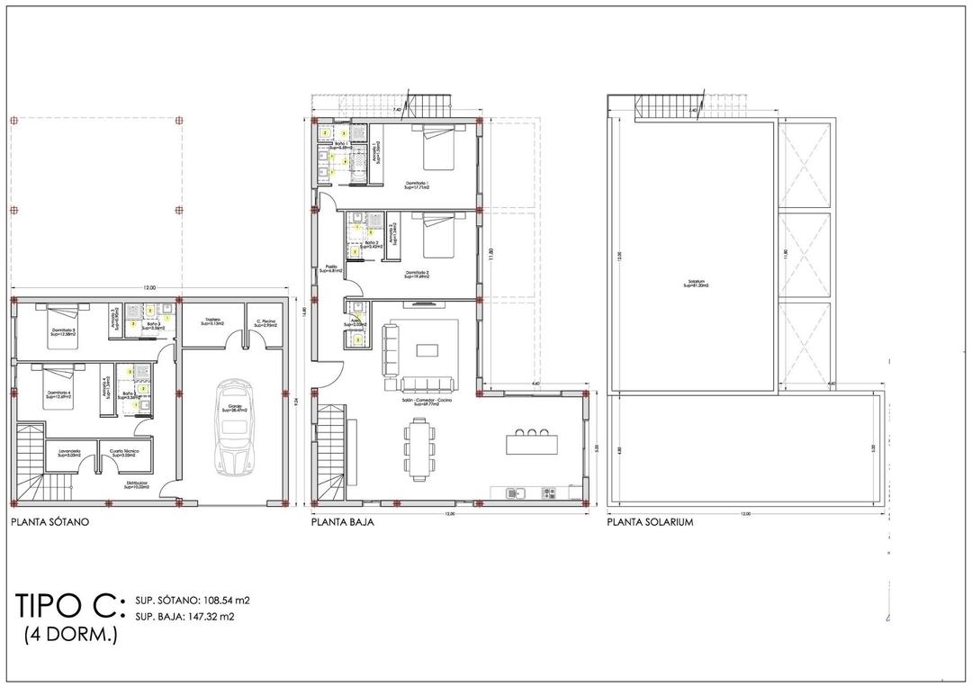
Each villa offers 3 or 4 spacious bedrooms, private landscaped gardens and a private infinity pool.
Selected units enjoy stunning sea views, while all properties are positioned on generous plots of more than 500 m2 with built areas starting from 222 m2.
Flexible Layouts with Basement and Rooftop Solarium Buyers can choose from four different layouts, all carefully designed to maximize space and natural light.
Every villa includes a basement level with private parking, storage room, laundry area and two bedrooms with en suite bathrooms connected to an English patio for natural light and ventilation.
The ground floor features one or two additional en suite bedrooms, a guest toilet and an open plan kitchen connected to the living and dining area, with direct access to the terrace and pool.
A rooftop solarium crowns each property, offering panoramic mountain or sea views and the option to install a jacuzzi.
High Quality Finishes and BREEAM Energy Efficiency These villas are built according to BREEAM certification standards, ensuring excellent energy performance and environmental responsibility.
Premium specifications include: Double glazed aluminium windows with thermal break and electric shutters Fully installed ducted air conditioning Motorized vehicle access gate Private swimming pool and landscaped garden Modern kitchen by PORCELANOSA equipped with appliances Designer bathrooms with furniture, mirrors and walk in showers Porcelain tiles by PORCELANOSA Prime Location Close to Beaches, Golf and Shopping Finestrat is a charming town located between the mountains and the sea, offering tranquility while being just minutes from vibrant Benidorm.
The area combines natural beauty with excellent infrastructure, international schools, restaurants and shopping centers.
Distances to Key Points of Interest Benidorm beaches 3.5 km La Marina Shopping Centre 1 km Puig Campana Golf 3 km Benidorm Old Town 4 km Alicante Airport 55 km Access to A7 motorway 2 km Live the Mediterranean Dream in Finestrat These villas offer the perfect balance between luxury, nature and connectivity on the Costa Blanca.
Contact us today to receive more information or to arrange a private viewing of these exceptional new build homes in Finestrat.
Luxuriöse Neubauvillen in Finestrat in der Nähe von Benidorm Exklusive Kollektion nachhaltiger, unabhängiger Villen Diese prestigeträchtige Wohnanlage umfasst 36 unabhängige Villen in der begehrten Urbanisation Bahia Golf in Finestrat, nur 3,5 km von der Mittelmeerküste entfernt.
Diese modernen Häuser wurden entworfen, um Luxus, Komfort und Nachhaltigkeit zu verbinden, und bieten einen außergewöhnlichen Lebensstil an der Costa Blanca, umgeben von Natur und dennoch in der Nähe aller Dienstleistungen.
Jede Villa verfügt über 3 oder 4 geräumige Schlafzimmer, einen privaten Landschaftsgarten und einen privaten Infinity-Pool.
Ausgewählte Einheiten bieten einen atemberaubenden Meerblick, während alle Immobilien auf großzügigen Grundstücken von mehr als 500 m² mit einer bebauten Fläche ab 222 m² liegen.
Flexible Grundrisse mit Keller und Dachterrasse Käufer können aus vier verschiedenen Grundrissen wählen, die alle sorgfältig entworfen wurden, um den Platz und das natürliche Licht optimal zu nutzen.
Jede Villa verfügt über ein Untergeschoss mit Privatparkplatz, Abstellraum, Waschküche und zwei Schlafzimmern mit eigenem Bad, die mit einer englischen Terrasse verbunden sind, die für natürliches Licht und Belüftung sorgt.
Im Erdgeschoss befinden sich ein oder zwei weitere Schlafzimmer mit eigenem Bad, eine Gästetoilette und eine offene Küche, die mit dem Wohn- und Essbereich verbunden ist und direkten Zugang zur Terrasse und zum Pool bietet.
Jede Immobilie verfügt über eine Dachterrasse mit Panoramablick auf die Berge oder das Meer und der Möglichkeit, einen Whirlpool zu installieren.
Hochwertige Ausstattung und BREEAM-Energieeffizienz Diese Villen werden nach den BREEAM-Zertifizierungsstandards gebaut, die eine hervorragende Energieeffizienz und Umweltverträglichkeit gewährleisten.
Zur hochwertigen Ausstattung gehören: Doppelverglaste Aluminiumfenster mit thermischer Trennung und elektrischen Rollläden Voll installierte Klimaanlage Motorisiertes Zugangstor für Fahrzeuge Privater Swimmingpool und Landschaftsgarten Moderne Küche von PORCELANOSA mit Geräten Designer-Badezimmer mit Möbeln, Spiegeln und begehbaren Duschen Porzellanfliesen von PORCELANOSA Erstklassige Lage in der Nähe von Stränden, Golfplätzen und Einkaufsmöglichkeiten Finestrat ist eine charmante Stadt zwischen den Bergen und dem Meer, die Ruhe bietet und gleichzeitig nur wenige Minuten vom pulsierenden Benidorm entfernt ist.
Die Gegend verbindet natürliche Schönheit mit einer ausgezeichneten Infrastruktur, internationalen Schulen, Restaurants und Einkaufszentren.
Entfernungen zu wichtigen Sehenswürdigkeiten Strände von Benidorm 3,5 km Einkaufszentrum La Marina 1 km Puig Campana Golf 3 km Altstadt von Benidorm 4 km Flughafen Alicante 55 km Anschluss an die Autobahn A7 2 km Leben Sie den mediterranen Traum in Finestrat Diese Villen bieten die perfekte Balance zwischen Luxus, Natur und Anbindung an die Costa Blanca.
Kontaktieren Sie uns noch heute, um weitere Informationen zu erhalten oder eine private Besichtigung dieser außergewöhnlichen Neubauten in Finestrat zu vereinbaren.
Villas de lujo de nueva construcción en Finestrat, cerca de Benidorm Colección exclusiva de villas independientes sostenibles Esta prestigiosa promoción cuenta con 36 villas independientes en la codiciada urbanización Bahía Golf, en Finestrat, a solo 3,5 km de la costa mediterránea.
Diseñadas para combinar lujo, comodidad y sostenibilidad, estas modernas viviendas ofrecen un estilo de vida excepcional en la Costa Blanca, rodeadas de naturaleza pero cerca de todos los servicios.
Cada villa cuenta con 3 o 4 amplios dormitorios, jardines privados y una piscina infinita privada.
Algunas viviendas disfrutan de impresionantes vistas al mar, mientras que todas ellas se encuentran en generosas parcelas de más de 500 m2 con superficies construidas a partir de 222 m2.
Distribuciones flexibles con sótano y solárium en la azotea Los compradores pueden elegir entre cuatro distribuciones diferentes, todas ellas cuidadosamente diseñadas para maximizar el espacio y la luz natural.
Todas las villas incluyen un sótano con aparcamiento privado, trastero, lavadero y dos dormitorios con baños en suite conectados a un patio inglés para aprovechar la luz natural y la ventilación.
La planta baja cuenta con uno o dos dormitorios adicionales con baño en suite, un aseo de invitados y una cocina abierta conectada al salón y al comedor, con acceso directo a la terraza y la piscina.
Cada propiedad cuenta con un solárium en la azotea, que ofrece vistas panorámicas a la montaña o al mar y la opción de instalar un jacuzzi.
Acabados de alta calidad y eficiencia energética BREEAM Estas villas están construidas según los estándares de certificación BREEAM, lo que garantiza un excelente rendimiento energético y responsabilidad medioambiental.
Las especificaciones premium incluyen: Ventanas de aluminio de doble acristalamiento con rotura de puente térmico y persianas eléctricas Aire acondicionado por conductos totalmente instalado Puerta de acceso motorizada para vehículos Piscina privada y jardín paisajístico Cocina moderna de PORCELANOSA equipada con electrodomésticos Baños de diseño con muebles, espejos y duchas a ras de suelo Gres porcelánico de PORCELANOSA Ubicación privilegiada cerca de playas, golf y tiendas Finestrat es una encantadora localidad situada entre las montañas y el mar, que ofrece tranquilidad a pocos minutos de la animada Benidorm.
La zona combina la belleza natural con excelentes infraestructuras, colegios internacionales, restaurantes y centros comerciales.
Distancias a puntos de interés clave Playas de Benidorm 3,5 km Centro comercial La Marina 1 km Puig Campana Golf 3 km Casco antiguo de Benidorm 4 km Aeropuerto de Alicante 55 km Acceso a la autopista A7 2 km Viva el sueño mediterráneo en Finestrat Estas villas ofrecen el equilibrio perfecto entre lujo, naturaleza y conectividad en la Costa Blanca.
Póngase en contacto con nosotros hoy mismo para recibir más información o concertar una visita privada a estas excepcionales viviendas de nueva construcción en Finestrat.
Luxe nieuwbouwwoningen in Finestrat, nabij Benidorm Exclusieve collectie duurzame vrijstaande villa's Dit prestigieuze project bestaat uit 36 vrijstaande villa's in de gewilde urbanisatie Bahia Golf in Finestrat, op slechts 3,5 km van de Middellandse Zeekust.
Deze moderne woningen zijn ontworpen om luxe, comfort en duurzaamheid te combineren en bieden een uitzonderlijke levensstijl aan de Costa Blanca, omgeven door natuur en toch dicht bij alle voorzieningen.
Elke villa heeft 3 of 4 ruime slaapkamers, een eigen aangelegde tuin en een privézwembad.
Sommige woningen hebben een prachtig uitzicht op zee, terwijl alle woningen zijn gelegen op royale percelen van meer dan 500 m2 met een bebouwde oppervlakte vanaf 222 m2.
Flexibele indelingen met kelder en solarium op het dak Kopers kunnen kiezen uit vier verschillende indelingen, die allemaal zorgvuldig zijn ontworpen om de ruimte en het natuurlijke licht te maximaliseren.
Elke villa heeft een kelder met privéparkeerplaats, berging, wasruimte en twee slaapkamers met en-suite badkamers die in verbinding staan met een Engelse patio voor natuurlijk licht en ventilatie.
De begane grond beschikt over één of twee extra slaapkamers met en-suite badkamer, een gastentoilet en een open keuken die in verbinding staat met de woon- en eetkamer, met directe toegang tot het terras en het zwembad.
Elk pand heeft een solarium op het dak, met panoramisch uitzicht op de bergen of de zee en de mogelijkheid om een jacuzzi te installeren.
Hoogwaardige afwerking en BREEAM-energie-efficiëntie Deze villa's zijn gebouwd volgens de BREEAM-certificeringsnormen, wat een uitstekende energieprestatie en milieuvriendelijkheid garandeert.
Tot de hoogwaardige specificaties behoren: Aluminium ramen met dubbele beglazing, thermische onderbreking en elektrische rolluiken Volledig geïnstalleerde airconditioning met luchtkanalen Gemotoriseerde toegangspoort voor voertuigen Privézwembad en aangelegde tuin Moderne keuken van PORCELANOSA, uitgerust met apparatuur Designbadkamers met meubilair, spiegels en inloopdouches Porseleinen tegels van PORCELANOSA Toplocatie dicht bij stranden, golfbanen en winkels Finestrat is een charmant stadje tussen de bergen en de zee, dat rust biedt en toch op slechts enkele minuten van het bruisende Benidorm ligt.
De omgeving combineert natuurschoon met een uitstekende infrastructuur, internationale scholen, restaurants en winkelcentra.
Afstanden tot belangrijke bezienswaardigheden Stranden van Benidorm 3,5 km Winkelcentrum La Marina 1 km Puig Campana Golf 3 km Oude binnenstad van Benidorm 4 km Luchthaven Alicante 55 km Toegang tot snelweg A7 2 km Leef de mediterrane droom in Finestrat Deze villa's bieden de perfecte balans tussen luxe, natuur en connectiviteit aan de Costa Blanca.
Neem vandaag nog contact met ons op voor meer informatie of om een privébezichtiging te regelen van deze uitzonderlijke nieuwbouwwoningen in Finestrat.