Located in a quiet and exclusive residential area, this newly built villa combines luxury, contemporary design and a perfect south orientation to make the most of the natural light and panoramic views.
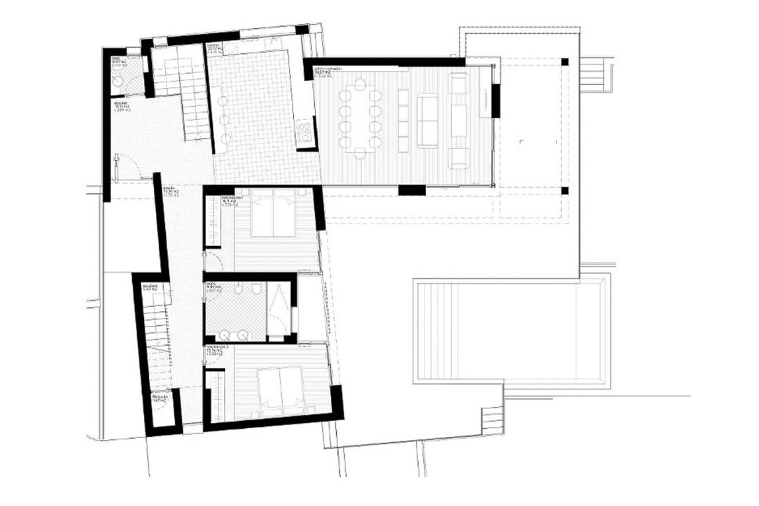
From its privileged position, the property offers spectacular 360 degree panoramic views, stretching from Jávea and Teulada to the beautiful bay of Moraira.~Entering the property, we find a spacious and elegant open concept living room that merges with a modern fully equipped kitchen.
Large windows let in natural light and harmoniously connect the interior with the terrace and private swimming pool, creating an ideal space to enjoy the Mediterranean climate all year round.
On this same floor, there are two double bedrooms with fitted wardrobes and a family bathroom, as well as a guest toilet.~The first floor is dedicated entirely to the master suite: a spacious bedroom with dressing room, en-suite bathroom and access to a private terrace from which you can enjoy unparalleled views of the coastline and the natural environment surrounding the property.~The basement of the villa offers endless possibilities thanks to its spaciousness and natural light.
This space can be adapted to the owner`s needs, whether as a gymnasium, cinema room, wine cellar or entertainment area.
In addition, the property has a double garage with direct access to the property.~The exterior has been designed to require minimal maintenance, with a beautiful Mediterranean garden surrounding the villa, blending in perfectly with the surroundings.
The swimming pool and terrace area invite you to relax and enjoy unforgettable moments outdoors.~Built with high quality materials and state-of-the-art thermal insulation (SATE), this villa guarantees energy efficiency and exceptional comfort at any time of the year.
Its location is unbeatable, within walking distance to supermarkets and the charming town of Moraira and Teulada, where you will find restaurants, shops and all the necessary services.~An exclusive property that combines privacy, design and incomparable views, ideal for those looking for a luxury home on the Costa Blanca.~Would you like to arrange a viewing?
Do not hesitate to contact us.
In einer ruhigen und exklusiven Wohngegend gelegen, kombiniert diese neu gebaute Villa Luxus, modernes Design und eine perfekte Südausrichtung, um das Beste aus dem natürlichen Licht und dem Panoramablick zu machen.
Von seiner privilegierten Lage aus bietet das Anwesen einen spektakulären 360-Grad-Panoramablick, der sich von Jávea und Teulada bis zur wunderschönen Bucht von Moraira erstreckt.~Beim Betreten der Immobilie finden wir ein geräumiges und elegantes, offenes Wohnzimmer, das mit einer modernen, voll ausgestatteten Küche verschmilzt.
Große Fenster lassen viel natürliches Licht herein und verbinden den Innenraum harmonisch mit der Terrasse und dem privaten Swimmingpool, wodurch ein idealer Ort geschaffen wird, um das mediterrane Klima das ganze Jahr über zu genießen.
Auf dieser Etage befinden sich zwei Doppelschlafzimmer mit Einbauschränken und ein Familienbad sowie ein Gäste-WC.~Die erste Etage ist ganz der Master-Suite gewidmet: ein geräumiges Schlafzimmer mit Ankleideraum, en-suite Badezimmer und Zugang zu einer privaten Terrasse, von der aus Sie einen unvergleichlichen Blick auf die Küste und die natürliche Umgebung des Anwesens genießen können.~Das Untergeschoss der Villa bietet dank seiner Geräumigkeit und seines natürlichen Lichts unendlich viele Möglichkeiten.
Dieser Raum kann an die Bedürfnisse des Eigentümers angepasst werden, sei es als Fitnessraum, Kinoraum, Weinkeller oder Unterhaltungsbereich.
Darüber hinaus verfügt die Immobilie über eine Doppelgarage mit direktem Zugang zum Grundstück.~Der Außenbereich wurde so gestaltet, dass er nur minimale Pflege benötigt.
Ein schöner mediterraner Garten umgibt die Villa und fügt sich perfekt in die Umgebung ein.
Der Swimmingpool und der Terrassenbereich laden zum Entspannen und Genießen unvergesslicher Momente im Freien ein.~Mit hochwertigen Materialien und modernster Wärmedämmung (SATE) gebaut, garantiert diese Villa Energieeffizienz und außergewöhnlichen Komfort zu jeder Jahreszeit.
Die Lage ist unschlagbar, nur wenige Gehminuten von Supermärkten und den charmanten Städten Moraira und Teulada entfernt, wo Sie Restaurants, Geschäfte und alle notwendigen Dienstleistungen finden.~Ein exklusives Anwesen, das Privatsphäre, Design und unvergleichliche Ausblicke vereint, ideal für alle, die ein Luxusdomizil an der Costa Blanca suchen.~Möchten Sie eine Besichtigung vereinbaren?
Zögern Sie nicht, uns zu kontaktieren.
Ubicada en una tranquila y exclusiva zona residencial, esta villa de nueva construcción combina lujo, diseño contemporáneo y una orientación perfecta al sur para aprovechar al máximo la luz natural y las vistas panorámicas.
Desde su posición privilegiada, la propiedad ofrece una espectacular panorámica de 360 grados, abarcando desde Jávea y Teulada hasta la hermosa bahía de Moraira.~Al acceder a la vivienda, nos encontramos con un amplio y elegante salón de concepto abierto que se fusiona con una moderna cocina totalmente equipada.
Grandes ventanales permiten la entrada de luz natural y conectan armoniosamente el interior con la terraza y la piscina privada, creando un espacio ideal para disfrutar del clima mediterráneo durante todo el año.
En esta misma planta, se encuentran dos dormitorios dobles con armarios empotrados y un baño familiar, además de un aseo de cortesía.~La primera planta está dedicada íntegramente a la suite principal: un dormitorio espacioso con vestidor, baño en suite y acceso a una terraza privada desde la que se pueden contemplar unas vistas inigualables del litoral y del entorno natural que rodea la propiedad.~El sótano de la villa ofrece un sinfín de posibilidades gracias a su amplitud y luz natural.
Este espacio puede adaptarse a las necesidades del propietario, ya sea como un gimnasio, sala de cine, bodega o zona de entretenimiento.
Además, la propiedad cuenta con un garaje doble con acceso directo a la vivienda.~El exterior ha sido diseñado para requerir un mantenimiento mínimo, con un hermoso jardín mediterráneo que rodea la villa, integrándose perfectamente con el entorno.
La piscina y la zona de terrazas invitan al relax y al disfrute de momentos inolvidables al aire libre.~Construida con materiales de alta calidad y aislamiento térmico de última generación (SATE), esta villa garantiza eficiencia energética y un confort excepcional en cualquier época del año.
Su ubicación es inmejorable, a poca distancia de supermercados y del encantador pueblo de Moraira y Teulada, donde se encuentran restaurantes, tiendas y todos los servicios necesarios.~Una propiedad exclusiva que combina privacidad, diseño y vistas incomparables, ideal para quienes buscan un hogar de lujo en la Costa Blanca.~¿Te gustaría concertar una visita?
No dudes en contactarnos.
Deze nieuw gebouwde villa ligt in een rustige en exclusieve woonwijk en combineert luxe met eigentijds design en een perfecte zuidoriëntatie om optimaal te profiteren van het natuurlijke licht en het panoramische uitzicht.
Vanuit de bevoorrechte positie biedt het pand een spectaculair 360 graden panoramisch uitzicht, dat zich uitstrekt van Jávea en Teulada tot de prachtige baai van Moraira.~Bij binnenkomst vinden we een ruime en elegante open woonkamer die samengaat met een moderne volledig uitgeruste keuken.
Grote ramen laten natuurlijk licht binnen en verbinden het interieur harmonieus met het terras en het privézwembad, waardoor een ideale ruimte ontstaat om het hele jaar door te genieten van het mediterrane klimaat.
Op dezelfde verdieping zijn er twee tweepersoonsslaapkamers met inbouwkasten en een familiebadkamer, evenals een gastentoilet.~De eerste verdieping is volledig gewijd aan de master suite: een ruime slaapkamer met kleedkamer, en-suite badkamer en toegang tot een privéterras vanwaar je kunt genieten van ongeëvenaard uitzicht op de kustlijn en de natuurlijke omgeving rondom het pand.~De kelder van de villa biedt eindeloze mogelijkheden dankzij de ruimte en het natuurlijke licht.
Deze ruimte kan worden aangepast aan de behoeften van de eigenaar, of het nu een fitnessruimte, bioscoopzaal, wijnkelder of entertainmentruimte is.
Daarnaast beschikt het pand over een dubbele garage met directe toegang tot het pand.~Het exterieur is ontworpen met het oog op minimaal onderhoud, met een prachtige mediterrane tuin rondom de villa die perfect past in de omgeving.
Het zwembad en het terras nodigen je uit om te ontspannen en te genieten van onvergetelijke momenten in de buitenlucht.~Gebouwd met materialen van hoge kwaliteit en de modernste thermische isolatie (SATE), garandeert deze villa energie-efficiëntie en uitzonderlijk comfort op elk moment van het jaar.
De locatie is onverslaanbaar, op loopafstand van supermarkten en het charmante stadje Moraira en Teulada, waar je restaurants, winkels en alle benodigde diensten vindt.~Een exclusieve woning die privacy, design en onvergelijkbaar uitzicht combineert, ideaal voor wie op zoek is naar een luxe huis aan de Costa Blanca.~Wil je een bezichtiging regelen?
Aarzel dan niet om contact met ons op te nemen.
Thinking of buying in Jávea? Here's what life is really like for foreign residents — the neighbourhoods, lifestyle, cost...
A comprehensive overview of the Spanish real estate market in 2026 — trends, hotspots, prices, and essential tips for in...
Considering living in El Mojón on the Costa Blanca? A practical, honest guide for retirees and second-home buyers explor...