Discover this charming apartment located in beautiful Playa del Cura, Mogán.
We have two units for sale, side by side!
It's in good condition ready for immediate move-in.
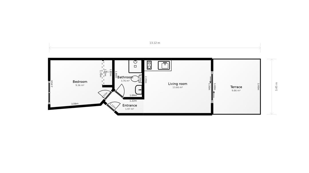
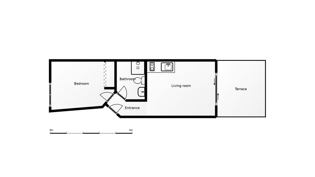
Enjoy unforgettable moments from its cozy private terrace of over 10 square meters while relaxing under the Canarian sun overlooking the sea.
Entering the interior, you'll find a bright double bedroom, a living room with an open-plan kitchen, and a full bathroom, perfect for your convenience.
The complex has direct access to the beach just a few minutes' walk away.
In addition, there are common facilities such as the pool, perfect for those hot days, and all this, accompanied by extensive amenities such as nearby bus stops and a shopping center with everything you need within reach.
It's worth noting the recent approval of the community, which allows rental as a vacation home; an excellent investment option!
Approval has also been given for improved access to the complex, benefiting people with reduced mobility.
The monthly fee is reasonable—€120—and includes water and electricity.
* Property Viewings *: All those interested in viewing the property must present a valid ID, such as a DNI, NIE (National Identity Document), or passport, prior to the viewing.
They will also be required to sign a viewing sheet upon entering the property.
Additional information: - Use of the property is always subject to current legislation.
- The sale price does not include taxes or purchase expenses, such as the Property Transfer Tax (6.5% or 1% for first-time transfers, plus the corresponding IGIC (Investment Tax) in the latter case), Property Registry, notary, and agency fees.
- Property information is subject to possible errors and involuntary changes.
Entdecken Sie diese charmante Wohnung im wunderschönen Playa del Cura, Mogán.
Wir haben zwei nebeneinander liegende Einheiten zum Verkauf!
Die Wohnung befindet sich in gutem Zustand und ist sofort bezugsfertig.
Genießen Sie unvergessliche Momente auf der gemütlichen, über 10 Quadratmeter großen Privatterrasse und entspannen Sie unter der kanarischen Sonne mit Blick auf das Meer.
Im Innenbereich finden Sie ein helles Doppelzimmer, ein Wohnzimmer mit offener Küche und ein komplettes Badezimmer – ideal für Ihren Komfort.
Die Anlage bietet direkten Zugang zum Strand, der nur wenige Gehminuten entfernt ist.
Darüber hinaus gibt es Gemeinschaftseinrichtungen wie den Pool, ideal für heiße Tage.
Hinzu kommen zahlreiche Annehmlichkeiten wie nahegelegene Bushaltestellen und ein Einkaufszentrum mit allem, was Sie brauchen.
Bemerkenswert ist die kürzlich erteilte Genehmigung der Gemeinde, die die Vermietung als Ferienhaus ermöglicht – eine hervorragende Investitionsmöglichkeit!
Auch ein verbesserter Zugang zur Anlage wurde genehmigt, was Menschen mit eingeschränkter Mobilität zugutekommt.
Die monatliche Gebühr beträgt 120 € und beinhaltet Wasser und Strom.
* Besichtigungen: Alle Interessenten müssen vor der Besichtigung einen gültigen Ausweis (z.
B. DNI, NIE (Personalausweis) oder Reisepass) vorlegen.
Beim Betreten der Immobilie ist außerdem eine Besichtigungsliste zu unterschreiben.
Weitere informationen: - Die Nutzung der Immobilie unterliegt stets der geltenden Gesetzgebung.
- Der Verkaufspreis beinhaltet keine Steuern und Nebenkosten wie Grunderwerbsteuer (6,5 % bzw.
1 % bei Erstübertragungen, zuzüglich der entsprechenden IGIC (Investitionssteuer) im letzteren Fall), Grundbuch-, Notar- und Maklergebühren.
- Die Immobilieninformationen können sich ändern oder Irrtümer vorbehalten.
Descubre este encantador apartamento situado en la hermosa Playa del Cura, Mogán.
¡Contamos con dos unidades en venta, uno al lado de la otra!
Está en buen estado para mudarse inmediatamente.
Disfruta de momentos inolvidables desde su acogedora terraza privada de más de 10 metros cuadrados mientras te relajas bajo el sol canario mirando al mar.
Entrando al interior encontrarás una luminosa habitación doble, salón-cocina americana junto con un baño completo ideal para tu comodidad.
El complejo dispone de salida directa que a pocos minutos a pie te lleva directamente a la playa.
Además de instalaciones comunes como la piscina, perfecta para esos días calurosos y, todo esto, acompañado por amplias comodidades como; paradas de autobuses cercanos y centro comercial con todo lo necesario al alcance.
Cabe destacar la reciente aprobación de la comunitaria, la cual permite el alquiler como vivienda vacacional;¡Una excelente opción de inversión!
También se han aprobado para la mejora de los accesos al complejo, beneficiando a personas de movilidad reducida.
La cuota mensual es razonable –120€– e incluye agua y electricidad.
* Visitas a la propiedad *: Todos los interesados en ver la propiedad deberán presentar un documento de identificación válido, como DNI, NIE o pasaporte, antes de la visita.
Además, se requerirá que firmen una hoja de visita al ingresar a la propiedad.
Informacion adicional: - El uso de la propiedad estará siempre sujeto a la legislación vigente.
- El precio de venta no incluye impuestos ni gastos de compraventa, como el Impuesto de Transmisiones Patrimoniales (6.5% o 1% en el caso de primera transmisión más IGIC correspondiente en este último caso), honorarios del Registro de la Propiedad, notaría y gestoría.
- La información sobre la propiedad está sujeta a posibles errores y cambios involuntarios.
water, Terras, dakterras, gemeenschappelijk zwembad, uitzicht op zee